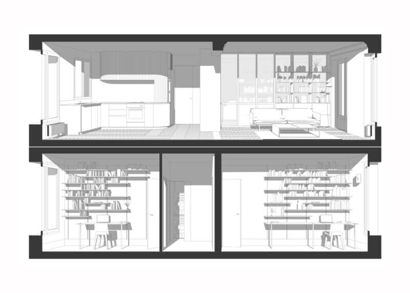
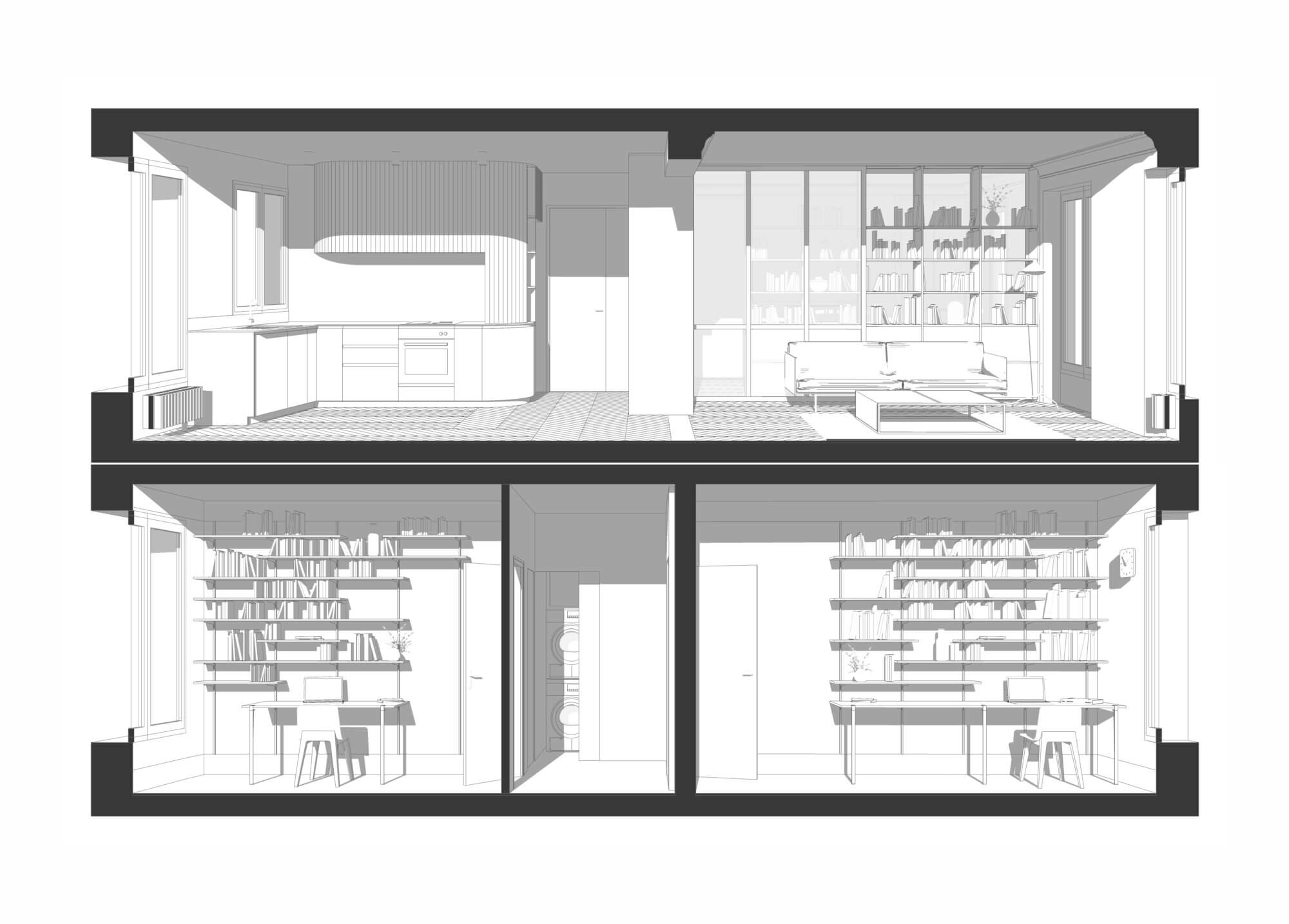
Duplex Pigalle Full renovation of a family apartment Paris, 2021-23 Design through Construction Administration residentialfurniture designfurnitureduplexdemolitiondecorationsteelinterior designrenovation